Commercial

PETER MARK OFFICES

Peter Mark Offices

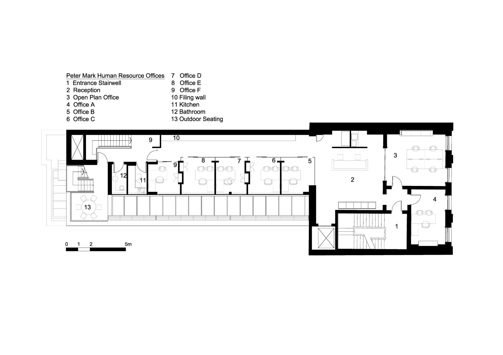
Peter Mark is one of Europe’s leading hair styling companies with its design headquarters located in the heart of Dublin Ireland. Peter Mark commissioned a new college for the training of their new up and coming stylist in the art hair design and styling. The college occupies 4 floors of a historical landmark building with modern additions added towards the back of the building. The design integrates and preserves the interior of the historical building while complementing the classical details with modern offices, furniture and artwork. The space is surprisingly light and airy with neutral light grey walls and accents of bright bold colours that are cleverly abstracted from the large painting in the reception. The clever use of glazed walls and sheer curtains in an office design shows that a non-open plan can still work perfectly with today’s demand for barrier-free and partition free workspaces by providing natural light and non-visual interruptions.